Under Contract

31 Pioneer St, Bingil Bay

$749k

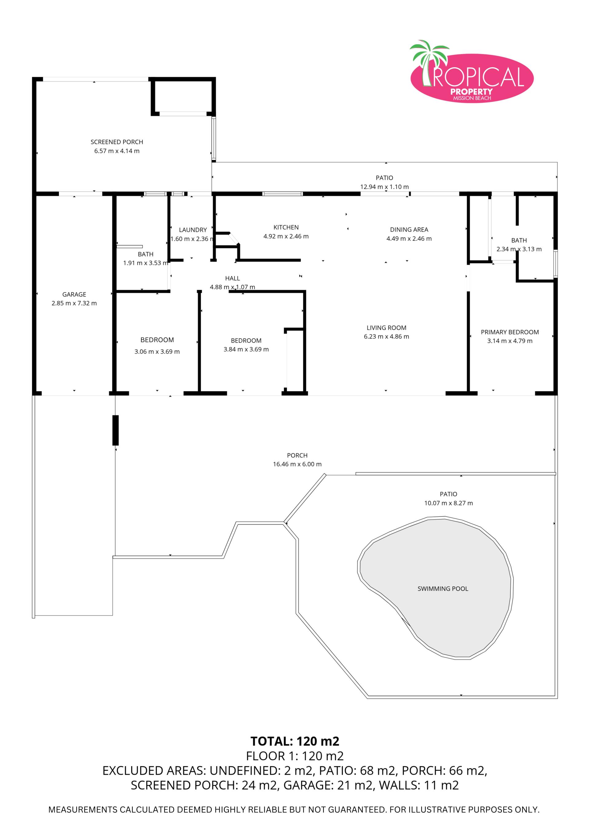
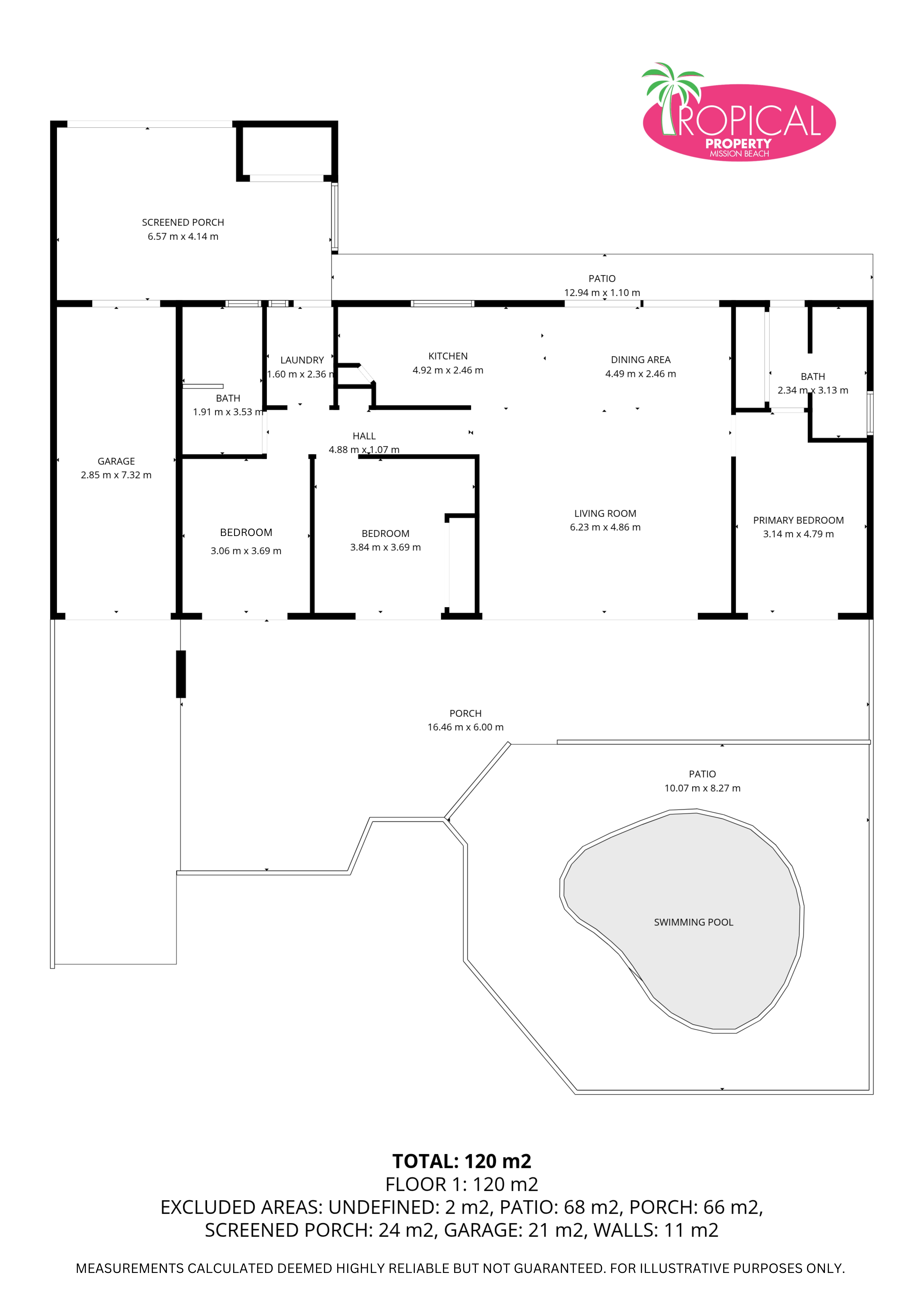
3 2 3 1,091 m2

Elevated, No Through Road, Next to Lookout with Beach Access !

* Location, Location !
* Double driveway access with large parking bay
* Well maintained, fully air-conditioned 
* Pool, fenced, established gardens and solar !

What a special elevated location off Cutten Street down a no-though road with the lookout at the end of the street with a seat to enjoy the ocean views, and a rainforest track leading directly down to the beach!

This private fully fenced property presents well and is well appointed and set-up for your best tropical lifestyle!

You'll love the high ceilings with exposed beams, and the natural light that floods the home with the addition of sky lights.  

There's 3 bedrooms in total, with a renovated ensuite and main bathroom plus a separate laundry.  There's great breezes from this elevated position but the house is fully air-conditioned throughout via split systems.  

A large front covered patio and outdoor courtyard will be well used, it overlooks the concrete inground pool and the pergola will be full of colour with the orange trumpet vine soon in full bloom.

There's lots of storage here, in addition to the carport and single lock up garage, there's a large parking bay at the front of the house with dual driveways, ideal for caravan and boat parking. 

There's 4 garden sheds in total for all your storage needs! Gardeners will love the fruit trees and raised vegetable garden beds and there's shade cloth around the entire rear fenced yard for privacy and weed management.

With solar hot water and solar panels on the roof offsetting your electricity account, it will be hard to resist this character filled beauty in stunning Bingil Bay!

Marketed exclusively for Steve and Anna by Tania @ Tropical Property : )


Property Features

Verandah Terrace/Paved Courtyard Outdoor entertainment area Fenced Skylight in-Ground Pool Close to beach Water Tank Solar Panels Solar Hot Water Built-in wardrobe Dishwasher Split System Air Conditioning

Details

Address 31 Pioneer St, Bingil Bay
Price $749k
Property Type Residential
Property ID 3454
Category House
Land Area 1,091 m2

Share

Tania Steele photo

Tania Steele

0448 250 499